With its unique appearance and flexible combination, the container office building breaks the building mode of the traditional office building and brings a new visual experience and space feeling to the office environment.
Products Description
Container houses have strong flexibility and customizability, and can be designed for space layout and functional zoning according to office needs to meet the office needs of different enterprises.


Essentials of designing a two-story office in a corrugated villa with assembled components:
1.Structural safety and stability:
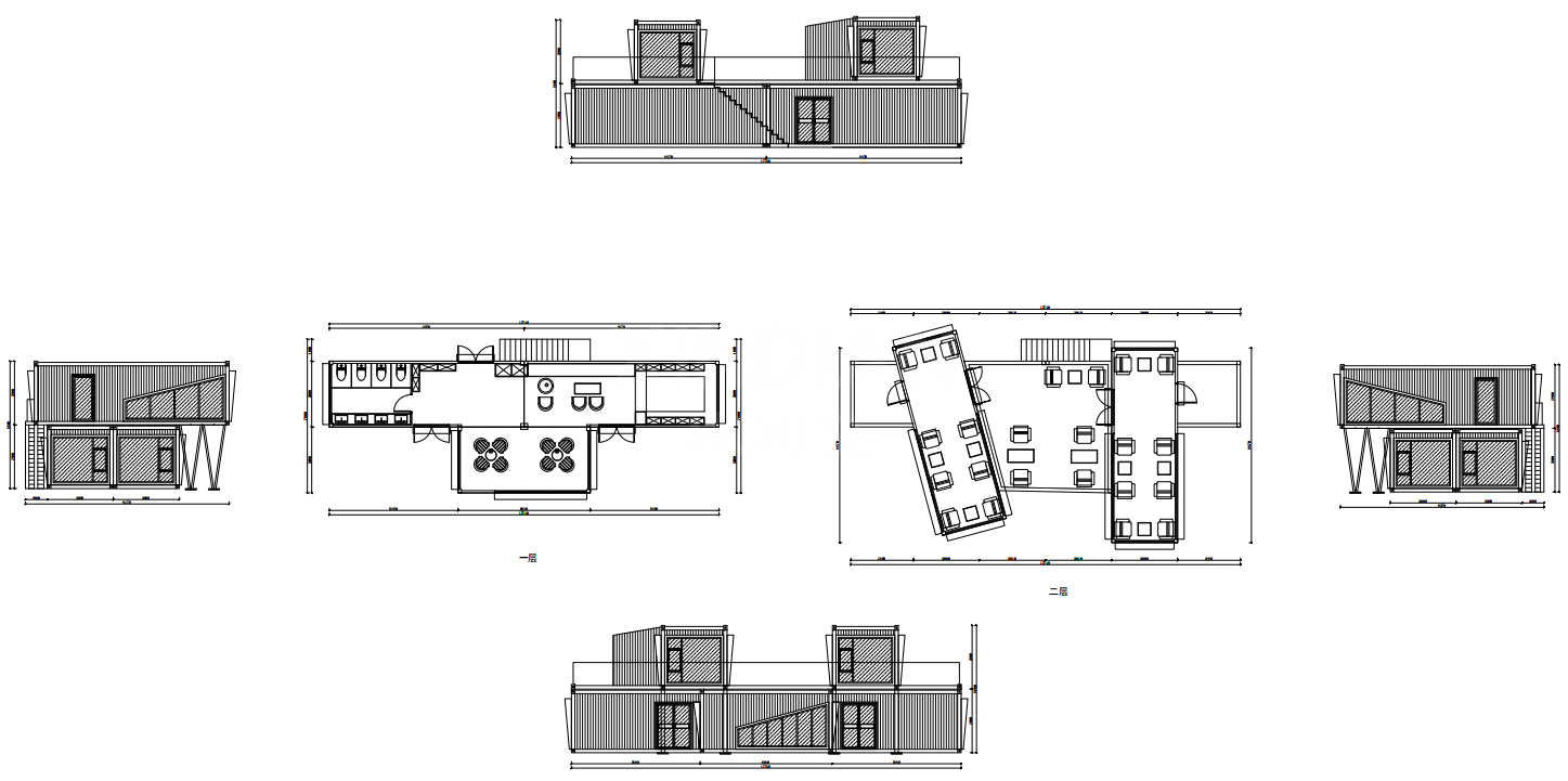
When designing a two-story modeling office building, the primary consideration is structural safety and stability. Need to ensure that the structural design of the container house to meet the building code and safety requirements, especially the second floor structure of the load-bearing and stability issues, need to use strengthening measures to ensure safety.
2.Space layout and functional partition:
Reasonable planning and layout of space is the key. According to the office needs of the enterprise, the first floor can be designed as a public area, such as reception area, rest area, meeting room, etc.; the second floor is designed as an office area, including various departments and independent offices. At the same time, it is also necessary to consider the lighting, ventilation and sound insulation of the office area in order to create a comfortable working environment.
3.Appearance design and style:
Appearance design and style are also important considerations. According to the brand image and cultural connotation of the enterprise, you can design a unique appearance shape and color matching, so that the office building becomes a display window of the corporate image. At the same time, you can also use green plants, water features and other natural elements to embellish and enhance the quality of the office environment.
4.Supporting facilities and services:
In order to enhance office efficiency and comfort, it is necessary to equip perfect supporting facilities and services. For example, it can provide convenient facilities such as high-speed network, intelligent security system, staff rest area, coffee shop, etc. Meanwhile, it can also provide business services such as printing, copying, mailing, etc. to meet the daily office needs of the staff.
Related Project
Hot Products
custom shipping container building modern house mobile ready for office or school
office building prefabricated flat pack detachable modular container house factory
3-story office building custom high quality flat pack shipping modular office
office building prefab flat pack detachable modular container dormitory
Modern Design Steel and Sandwich Panel Modular Packing Container House Dormitory for Office or Mall
How Can We Help You?
Determine the type of prefabricated house, design the structural drawings, and determine the layout and dimensions according to the application scenario of the project and the dimensions of the client's land.
Quick Links
Contact Information
Tel: +86 153 7386 6193
Mob.: +86 153 7386 6193
E-mail: sophie@hbxdce.com
Skype: +86 153 7386 6193
WhatsApp: +86 153 7386 6193
WeChat: +86 153 7386 6193
Contact Us